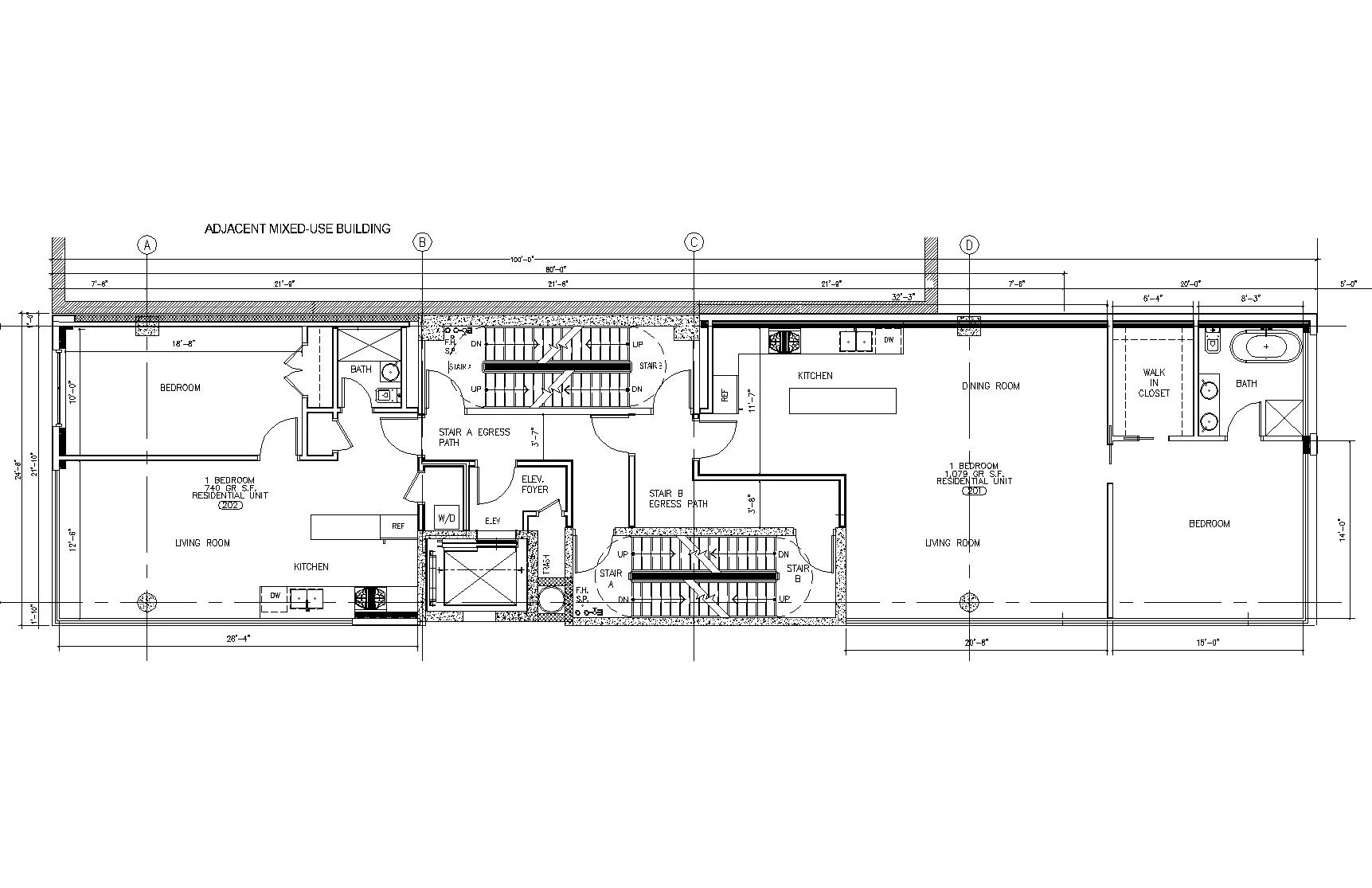
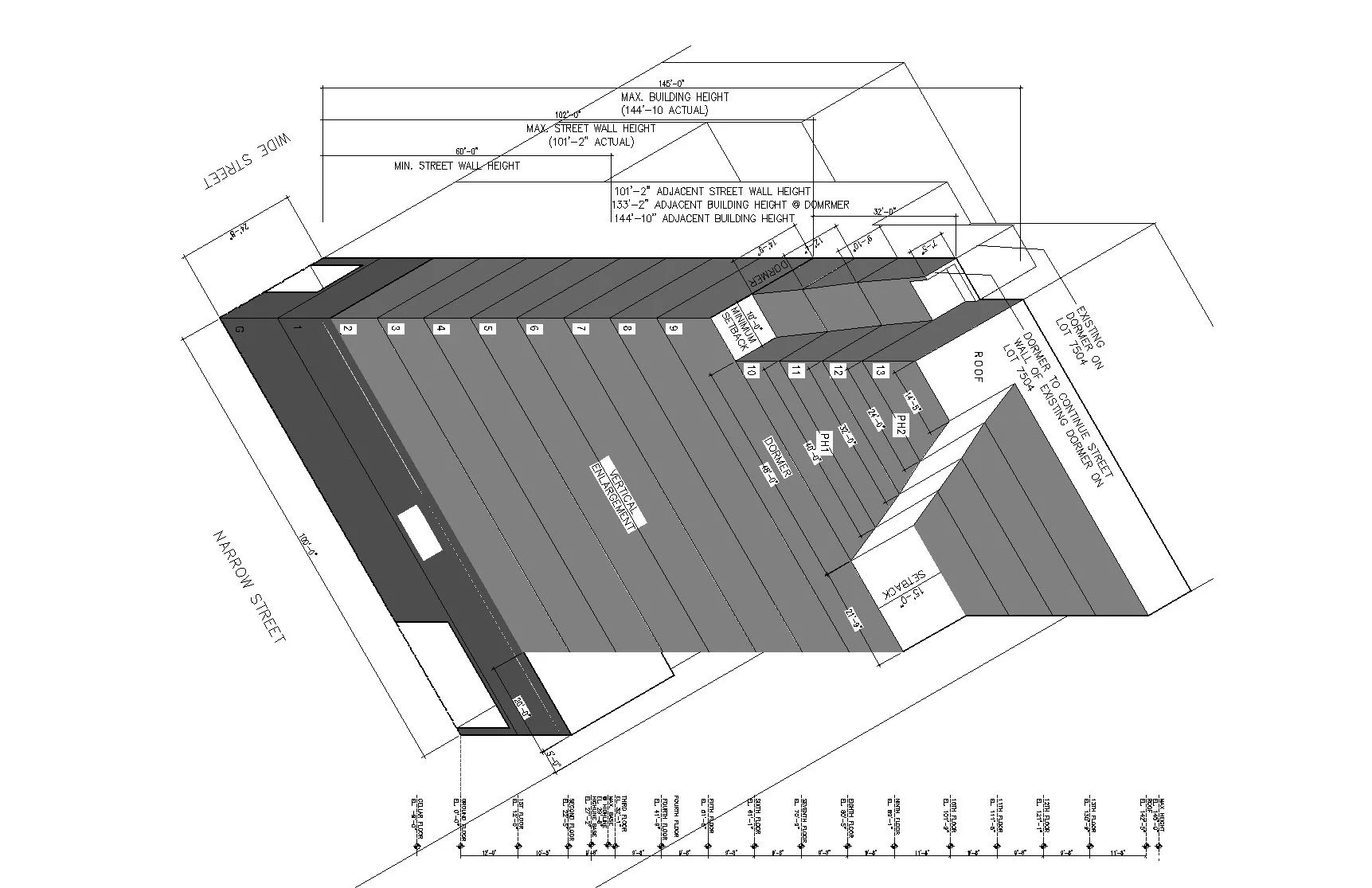
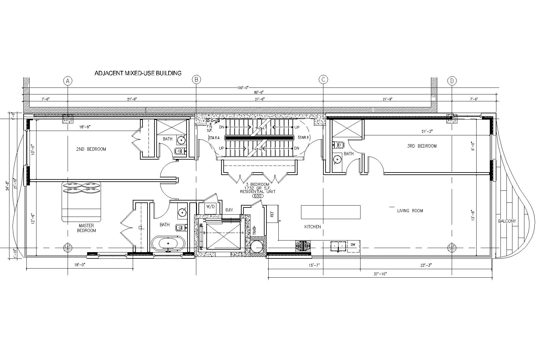
Highline NYC
The client came to us initially through or long time associate Jim Power at Kramer Levin, top real estate and zoning attorneys in new York city. the client had an existing one story building with a non conforming use according to current zoning and wished to by unused development rights from an adjacent building 4 lots away. while visiting the department of buildings the expeditor was told in no uncertain terms that the building had to confirm to the letter of the code in order to make additions while maintaining the existing non conforming use. after much time the team was able to obtain a favorable determination from the department of buildings and is ready to begin schematic design.
